Titelbild

Vom Flugzeughangar zum Wohnquartier
Umbau und denkmalgerechte Sanierung des ehemaligen Flughafens Bücker-Werke Rangsdorf
Beschreibung
Auf dem ehemaligen Flugplatz Rangsdorf in Brandenburg, direkt südlich der Berliner Stadtgrenze, entsteht ein lebenswertes, modernes und zukunftsgerichtetes Quartier, das als Gartenstadt im kreisförmigen Flugfeld konzipiert ist. Das „BUC-36“ bietet neuen Raum für gemeinsames Wohnen, Arbeiten, Lernen, Freizeit und Erholung im baukulturellen Erbe. Das Konzept denkt den historischen Bestand der ehemaligen Bücker-Werke mit insgesamt vier Denkmal geschützten Industriehallen weiter.
Schmitt von Holst wurden mit dem Umbau und die denkmalgerechte Sanierung der ehemaligen Endmontagehalle beauftragt. Geplant ist der Neubau von drei Mehrfamilienhäusern mit 92 Wohneinheiten und einem hohen Wiedererkennungswert.
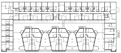
Als integriert gedachtes Wohnkonzept nach dem Prinzip „Haus in Haus“ fügen sich die drei Pavillon-Bauten behutsam in die denkmalgeschützte Endmontagehalle ein. Die Struktur und die Materialien des Industriedenkmals bleiben erhalten. Eine zentrale, offene Halle, die einem klaren Raster aus Stützen, Achsen und Öffnungen folgt, verbindet die Pavillon-Bauten als identitätsstiftender, zentraler Verteiler.
Die Ziegel- und Putzfassaden, Stahlträger, Lichtband und Teile der Holztore werden saniert und weiterentwickelt. Neu ergänzte Fassadenelemente orientieren sich in Form und Materialität am Flugzeugbau und werden als Metallfassade aus Zinkblech ausgeführt. Auf diese Weise respektiert die Planung den Bestand und setzt gezielt neue Akzente im Raum.
Zur Website des BUC-36 (terraplan)
Bilder und Pläne
-
Die historische Endmontagehalle wurde 1938 von den Architekten Otto und Gustav Werner im Auftrag der Fa. Bücker errichtet.

-

-
Dreiseitig werden Werkstattanbauten im Dialog mit der historischen Kubatur ergänzt, um neue Wohnflächen zu integrieren. Dieser U-förmige Werkstattflügel wird partiell aufgestockt.

-

-
1. OG

-

Blick in das offene Atrium mit Pavillon-Bauten
-

-


Datenblatt
- Ort
- Rangsdorf (Brandenburg)
- Typologie
- Wohnbau
- Aufgabe
- Umbau und denkmalgerechte Sanierung der ehemaligen Endmontagehalle am historischen Standort des Flughafens der Bücker-Werke, Neubau von drei Mehrfamilienhäusern, insgesamt 92 Wohneinheiten
- Auszeichnung
- Ideenwerkstatt 2. Preis (Städtebau), 2020
- Auftraggeber
- terraplan Baudenkmalsanierungsgesellschaft mbH
- Umfang
- 6.300 m² Wohnfläche
- Leistungen
- Leistungsphasen 1-7
- Fertigstellung
- Ende 2027
- Team
- Tim Schmitt, Massimo Sean Pepe, Simon Sander, Alparslan Ucar, Julius v. Holst






















